Plans to build almost 200 affordable homes in Clifton.
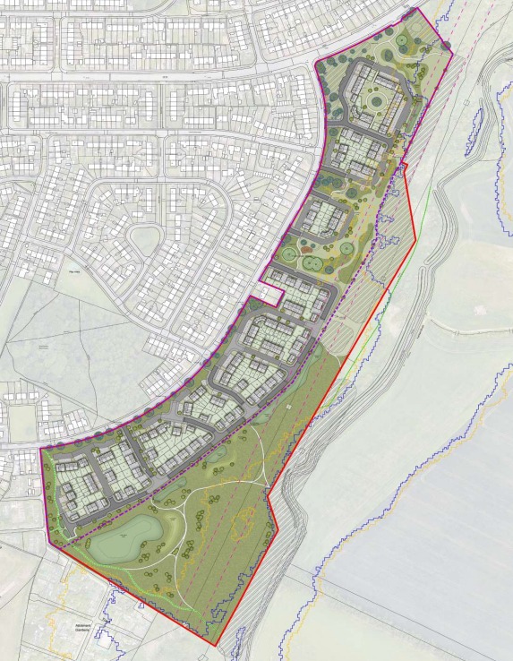
United Living is looking to build 198 homes off Summerwood Lane in Clifton, on land that was once home to the Fairham School and Summerwood Day Centre.
The former school and day centre buildings, which were located on the northern half of the site, have been demolished.
All of the homes would be made available for social rent or shared-ownership, in a bid to help address the growing council housing waiting list in the city.

It will mark an expansion to the Clifton estate, the construction of which began in the early 1950s and continued into the 1960s, representing one of the most significant post-war housing developments in the country.
The homes would be managed by Nottingham Community Housing Association (NCHA).
A public consultation was held in March this year, with the developers aiming to get the thoughts of nearby residents before submitting their proposals.

In plans submitted this month, United Living said: “The proposals seek to deliver a high-quality, sustainable residential neighbourhood comprising 198 affordable homes.
“The development aligns with the housing allocation set out in the Local Plan and will transform this vacant site into a vibrant and inclusive community that integrates sensitively with the existing urban fabric of Clifton.
“The proposed housing mix has been carefully shaped to support a balanced and sustainable community, offering a spread of one- to four-bed homes that directly responds to the identified needs of Clifton.
“Delivering 100 per cent affordable housing in a well-connected and sustainable location ensures the scheme makes a meaningful contribution to local demand while providing residents with genuine choice in how they live.”
Much of the site is made up of fields that run alongside Fairham Brook, an area of the estate widely used by dog walkers.
Part of the site is also designated green belt land, which the developer has promised to avoid building on.
The area near Fairham Brook will be maintained as a large area of open green space, accessible to the public.
Planning documents add: “Private amenity space has been carefully considered across the site. Garden depths have been maximised wherever possible to create generous buffers and ensure each home benefits from a usable, well-proportioned outdoor space.
“In the northern parcel, where a communal garden is provided for the maisonette block, each ground-floor home also benefits from a private paved terrace with sensitively positioned screening to ensure comfort and privacy.”
In May 2023, Nottingham City Council agreed to sell the site to raise “significant” amounts of money, which could be used to fund its services and facilitate house building in the area.
The site had been allocated for housing under its Local Plan.
Cllr Kevin Clarke, who represents the Clifton ward on the city council, previously told the Local Democracy Reporting Service: “We’ve heard one or two concerns about rights of way and that, but at the end of the day it is a development that is welcome in Clifton.
“There is a general shortage of family homes throughout the whole city, and Clifton especially, so people are welcoming it.
“There is always a little bit of concern when you are touching green belt land. It is inevitable that it is going to happen with the housing stock that is required. I do believe it will be for the better for Clifton.”




